PASQUAL & SHEILA

Project: Pasqual & Sheila

Link

Location: Valencia (Spain)

Year: 2026

Photo: Andriy Bezuglov

Team: Volodymyr Nepyivoda, Dmytro Bonesko, Serhii Prydkyi, Serhii Andriyenko, Anna Hrab



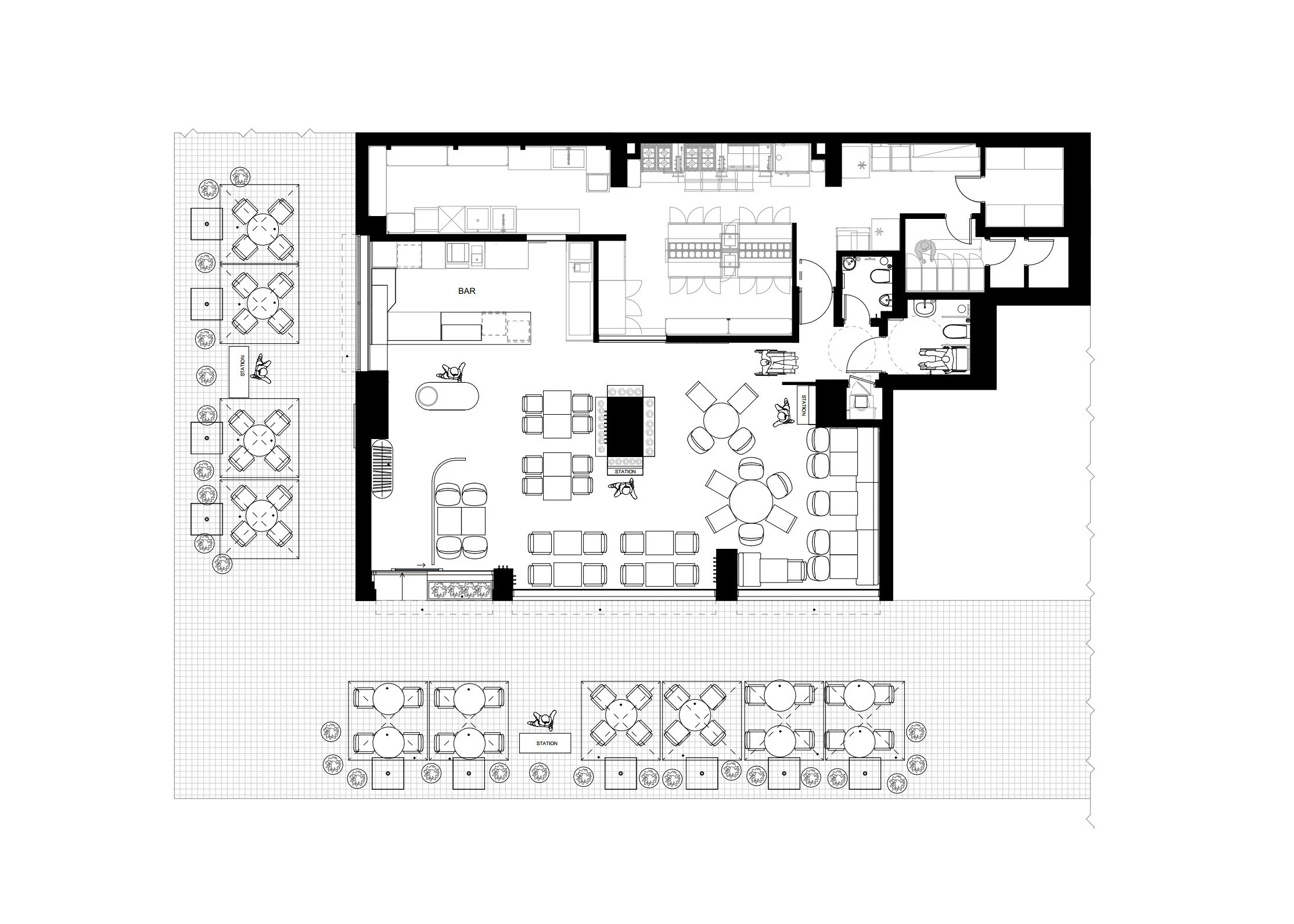
A restaurant in Valencia that seamlessly blends into its local context while offering a fusion of local and international cuisine. The space conveys openness, a zest for life, and a desire for new experiences.

The restaurant’s name is inspired by the story of a young woman and her dog, who travel the world discovering new flavors and cultures, embracing life in all its diversity. This narrative forms the foundation of the concept: a restaurant as a place for gathering, connection, and experiencing the magic of culinary fusion.


SPANISH TRADITION - REIMAGINED

The interior has a distinct southern character – expressed through its materials, colors, and an atmosphere of lighthearted ease that gives the space its unique charm. The primary materials are ceramic tile and light wood. The tiles reference Spanish tradition while introducing a sense of coolness, whereas the wood – a warm and tactile material – adds a feeling of comfort and intimacy. Abundant greenery animates the space: potted plants, hanging elements, and cascading arrangements create a lush, vibrant environment.

A central column – an unavoidable structural element – was clad in rectangular ceramic tiles, with a storage unit integrated at its base. In this way, a spatial constraint was transformed into a functional feature, serving as a waitstaff station.

FUNCTIONALITY

BOLD AND PLAYFUL

Bold, contrasting graphics introduce an additional visual layer, adding a playful accent and reinforcing the restaurant’s relaxed atmosphere.

Large windows flood the interior with natural light and can be fully opened using a sash mechanism, blurring the boundary between the interior and the street and reinforcing the sense of openness.


LET THE LIGHT IN

“We aimed to create a modern, minimalist space with a southern spirit – subtly referencing the Valencian context through our own perspective, without directly replicating traditional design elements. A space that reflects the hospitality, warmth, and hedonism of its owner – slightly chaotic, effortlessly carefree, and full of life, sunshine, and flavor,” says YOD Group Art Director Dmytro Bonesko.

“SLIGHTLY CHAOTIC, EFFPRTLESSLY CAREFREE AND FULL OF LIFE”

OUR TEAM

Previous
Previous

MOUNTAIN RESIDENCE / Romantic Lounge

Next
Next

Rosso