PASQUAL & sHEILA

проект: Pasqual & Sheila

лінк

Площа: 165 м2

Локація: Валенсія, Іспанія

Рік: 2026

Фото Андрій Безуглов

Команда: Володимир Непийвода, Бонеско Дмитро, Анна Граб, Сергій Прудкий, Сергій Андрієнко


ПЕРЕШКОДА ЯК РЕСУРС

Ресторан у Валенсії, що органічно інтегрується у локальний контекст і пропонує поєднання локальної та світової кухні. Простір закладу транслює відкритість, натхнення життям і жагу до нових вражень.

Назва закладу відсилає до історії дівчини та її пса, які подорожують світом, досліджують нові смаки та культури, радіючи життю у його різноманітних проявах. Ця ідея стала основою концепції: ресторан як місце зустрічі, об’єднання та переживання магії кулінарного ф’южну.


.

СОНЯЧНИЙ ЗАТИШОК

Інтер’єр має виразний південний характер – у матеріалах, кольорах і настрої легкої безтурботності, яка створює власний шарм. Основні матеріали: керамічна плитка і світле дерево. Плитка апелює до іспанської традиції та додає прохолоди, дерево – теплий і тактильно приємний матеріал, що створює затишок. Простір наповнений зеленню: рослини у вазонах, підвісні та каскадні елементи дають відчуття соковитого та живого середовища.


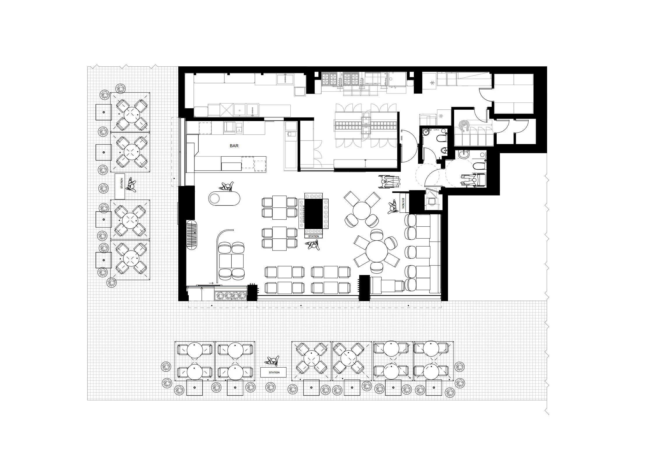
Центральну колонну, що була технічним елементом простору і не підлягала демонтажу, облицювали прямокутною керамічною плиткою та додали зону для зберігання у нижній частині. Так архітектурна перешкода перетворилася на функціональний елемент – станцію  офіціантів. Ключовим завданням було ефективне використання простору – команда спроєктувала планування з максимальною кількістю посадкових місць, зберігаючи комфортну логістику для гостей і персоналу навіть за повної посадки.

АКЦЕНТНІ ДЕТАЛІ

Додатковим акцентом в інтер’єрі стала яскрава та контрастна графіка, що додає простору грайливості та підкреслює його невимушену атмосферу.

РОЗМИТІ МЕЖІ

Великі вікна наповнюють інтер’єр природним світлом і можуть повністю відкриватися гільйотинним методом, розмиваючи межу між внутрішнім простором і вулицею та підсилюючи відчуття відкритості.


МІСЦЕ СПОВНЕНЕ ЖИТТЯ

«Ми прагнули створити сучасний і лаконічний заклад із південним вайбом. Із делікатними відсилками до валенсійського контексту крізь призму власного бачення, без  прямого цитування традиційних локальних рішень. Простір, що передає гостинність, теплоту та гедонізм, притаманні його власнику. У міру хаотичний, у міру легковажний, сповнений життя, сонця та смаку», – розповідає арт-директор YOD Group Дмитро Бонеско.


НАША КОМАНДА

Previous
Previous

MOUNTAIN RESIDENCE / Romantic Lounge

Next
Next

Rosso