SHADE BURGER

проект: Shade Burger

локація: вул. Соборності, 25, Полтава, Україна

площа: 50 m²

рік: 2016

фото: Andrey Avdeenko 

Shade Burger - це новий бургерний ресторан у Полтаві, де панує стильна атмосфера, помірні ціни та найсмачніші бургери у місті.

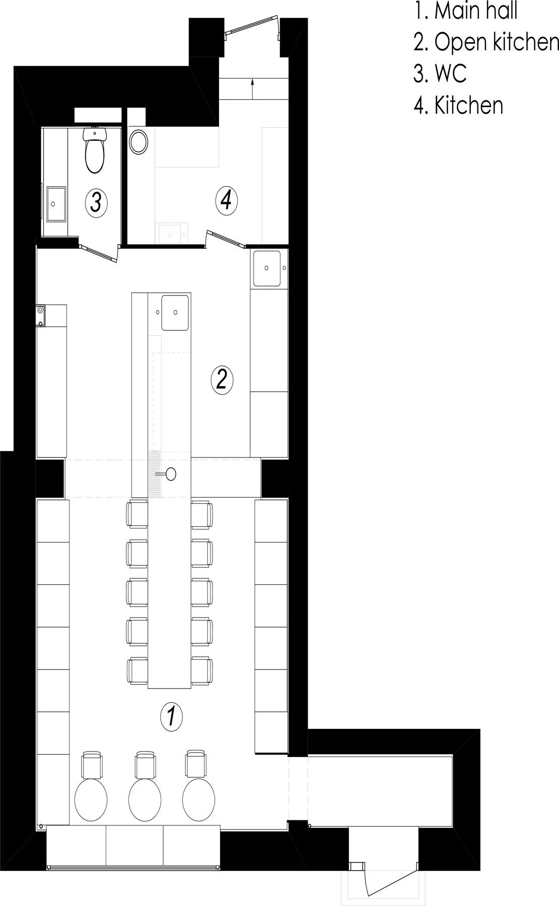
Завдяки правильному підходу до зонування, на невеликій площі можна розмістити 27 посадочних місць. Інтер'єр дещо аскетичний і брутальний, що характерно для американських бургер-барів.


КОНЦЕПЦІЯ

Концепція дизайну безпосередньо пов'язана з кухнею і зосереджена на самому бургері. Ця проста і надзвичайно популярна страва складається з певної комбінації основних інгредієнтів. Подібне поєднання матеріалів сформувало інтер'єр Shade Burger. Його головним інгредієнтом є натуральний шпон дерева, що звисає зі стелі та символізує фарш. Цей шпон раніше був помітний в Shade meat&wine (ще один ресторан, розроблений для нашого клієнта). Центральне панно з пластин шпону створює ілюзію сонячного світла, що проходить крізь дерева. Тепер шпон з'явився на стелі, нагадуючи фарш, що проходить через м'ясорубку.

ФІРМОВИЙ СТИЛЬ

Власне, образ м'ясорубки ліг в основу фірмового стилю. Він зустрічається на логотипі та інших елементах айдентики, даючи ключ до розуміння інтер'єру.

SHADE BURGER

Новий заклад орієнтований, перш за все, на молодих, космополітичних і відкритих людей. Це перший заклад Shade Burger в Україні. У майбутньому планується відкриття мережі ресторанів у невеликих українських містах.

Previous
Previous

Copper Head

Next
Next

EAST Restaurant