EMILY RESORT / Конференц Зал

проект: Emily Resort / Конференц Зал

лінк

локація: вулиця Хмельницького, 9Б, м. Винники, Львівська область

площа: 464 m²

рік: 2022

фото: Євген Авраменко

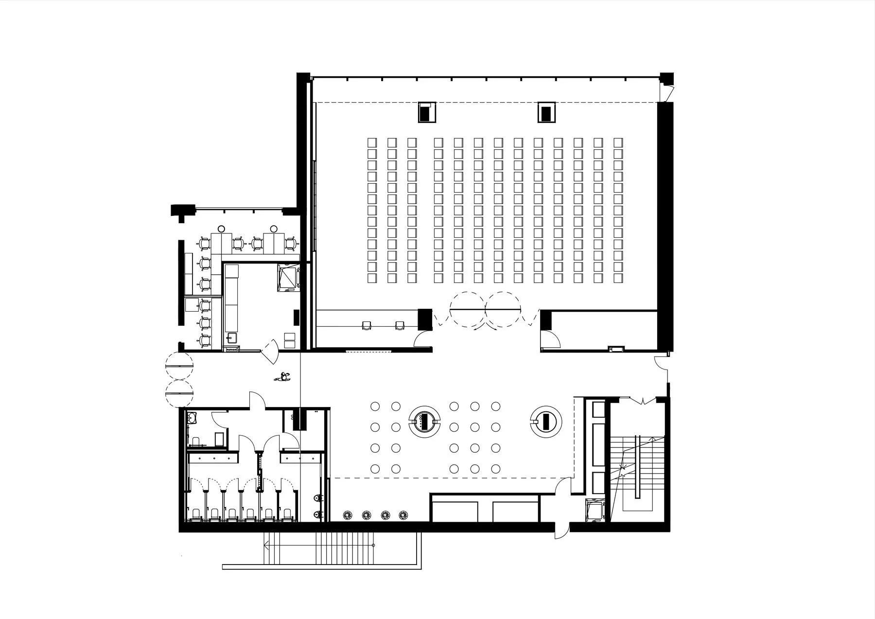
Лаконічна та функціональна конференц-зала на 200 слухачів. Led-екран вздовж всієї стіни дозволяє транслювати зображення, що залишається яскравим і чітким незалежно від сонячної погоди та без необхідності зашторювати вікна.

Чисті лінії, дубовий шпон на стінах, біодинамічне освітлення та раціональне використання простору перетворюють це приміщення на ефективний інструмент для бізнесу, навчання та зміцнення корпоративної культури. Технічна рубка конференц-зали оснащена якісною акустикою, в ній передбачене місце для синхронних перекладачів та повний комплект обладнання для презентацій, семінарів та інших заходів.


ВХІДНА ГРУПА

Вхід до зали лежить через просторий хол, який можна використовувати для каво-брейків, фуршетів та нетворкінгу. Логістика кейтерингу продумана таким чином, щоб потік персоналу був відокремлений від основного потоку гостей. Для сервісних потреб передбачений окремий вихід, що веде в ліфтову шахту. Звідти через виділений підземний коридор до холу потрапляють офіціанти, їжа та напої.

КРУГЛІ КОЛОНИ

Круглі колони в холі мають вставки з натурального каменю. Вертикальні брили немовби розрізають колону навпіл, виростаючи з підлоги. Це метафоричне нагадування про те, що у будь-яких знаннях важливо доходити до суті і розуміти природу речей. Без міцного базису не буде гармонійної конструкції. Кам’яні вставки – чи не єдиний декоративний елемент в проекті.

ЛОБІ

Хол та основну залу розділяють поворотно-осьові конструкції дверей. Коли вони повністю відкриті – приміщення поєднані між собою, коли двері закриті – зала ізольована і ніщо не відволікає увагу слухачів. На стіні холу розміщений бренд-волл. Так само, як основний екран конференц-залу, він створений з LED-елементів. Такий бренд-волл дозволяє змінювати зображення і транслювати рухому картинку. А ще він рятує планету від сотень банерів, які зазвичай опиняються на звалищі після одного використання.

Previous
Previous

Риба у вогні

Next
Next

EMILY RESORT / Chilli Sport Bar