BATONI

проект: Batoni

link

локація: Дубай, ОАЕ

площа: 330 m²

рік: 2024

фото: Іван Авдієнко

команда: Володимир Непийвода, Дмитро Бонеско, Анна Данілова, Завсєголов Андрій

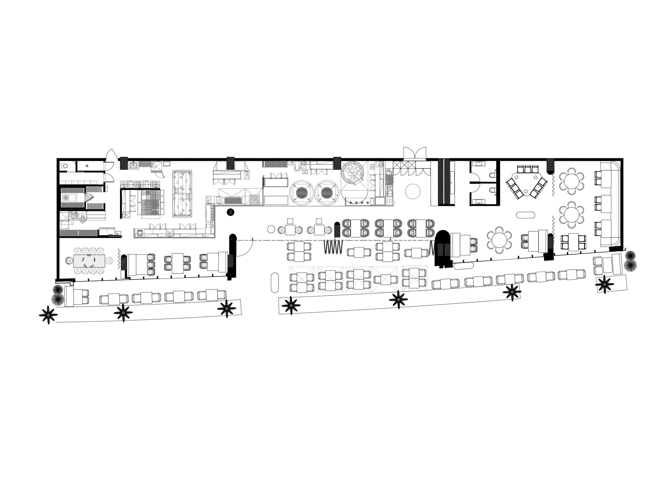
Batoni – це ресторан грузинської кухні в Дубаї. Заклад розміщений на нижньому поверсі нового будинку на узбережжі Хор-Дубай. Інтер’єр Batoni відображає відкритість, щирість та близькість до природи, як національні риси грузинської культури.

Головною метафорою щирості у просторі стала відкрита технологія кухні. Гість бачить основні процеси приготування страв фактично з порогу закладу. Традиційні грузинські тандири, в яких запікаються страви та хліб, розміщені в одну лінію з фасадом кухні та декоровані керамічною плиткою таким чином, щоб утворювати суцільну композицію.


Основний матеріал, а також головний відтінок в інтер’єрі – це теракота. Вона вкриває більшість поверхонь та створює тепле фактурне тло. Теракотова керамічна плитка на підлозі вкладена традиційним способом, а на стінах та колонах використано клінкерні штифти, які тримають кожну окрему плитку, підкреслюючи товщину керамічної пластини, її фактурний край та естетику з’єднань. Таким чином поверхня набуває тривимірного ефекту та створює цікавий світло-тіньовий ефект.

АКЦЕНТНІ ОБРАЗИ 

Простір ресторану має витягнуту довгасту форму, де основний зал плавно перетікає в два менших бічних, які можна за потреби відокремити текстильними шторами. В одному з бокових залів над великим столом висить об’ємна люстра, що за формою нагадує традиційні грузинські шапки з овечого хутра. В другій залі, що в протилежному кінці простору, освітлення під стелею являє собою кулі, поміщені у напівпрозору підсвічену мембрану. Гості безпомилково вгадують у цій конструкції традиційні солодощі – чурчхелу. Стеля основного просторі ресторану декорована інсталяцією з текстильної сітки, що відтворює гірський ландшафт Грузії, як його зображують на топографічних мапах.

АКЦЕНТНІ ОБРАЗИ 

«Ми не є прихильниками надмірного декоративізму, коли традиційні символи тиражуються та використовуються в інтер’єрі напряму, щоб проявити зв'язок з певною культурною ідентичністю. З іншого боку, нам цікаво досліджувати традиції, пропускати їх крізь власне творче бачення і осмислювати в актуальному ключі», –  розповідає арт-директор YOD Group Дмитро Бонеско. У інтер’єрі Batoni є декілька алюзій на традиційні грузинські артефакти. Максимально вони проявлені в елементах освітлення.

Унікальне кастомне рішення – керамічні столи, створені спеціально під проект. Винятковість столів зумовлена їхнім масштабом.  Відлити та обпалити в печі керамічні елементи такого розміру – технологічно складна задача. Цінність рішення полягає у емоційному досвіді, який отримує гість закладу від взаємодії з вишуканим натуральним матеріалом. Коли руки відвідувачів а також посуд торкаються поверхні – це тактильно та акустично приємні відчуття, що відкладаються в пам’яті та формують унікальну атмосферу Batoni.

КОМАНДА

Previous
Previous

EMILY RESORT / Івент Хол