EMILY RESORT / Гостьова зона

проект: Emily Resort / Лобі

лінк

локація: вулиця Хмельницького, 9Б, м. Винники, Львівська область

площа: 550 m2

рік: 2022

фото: Євген Авраменко

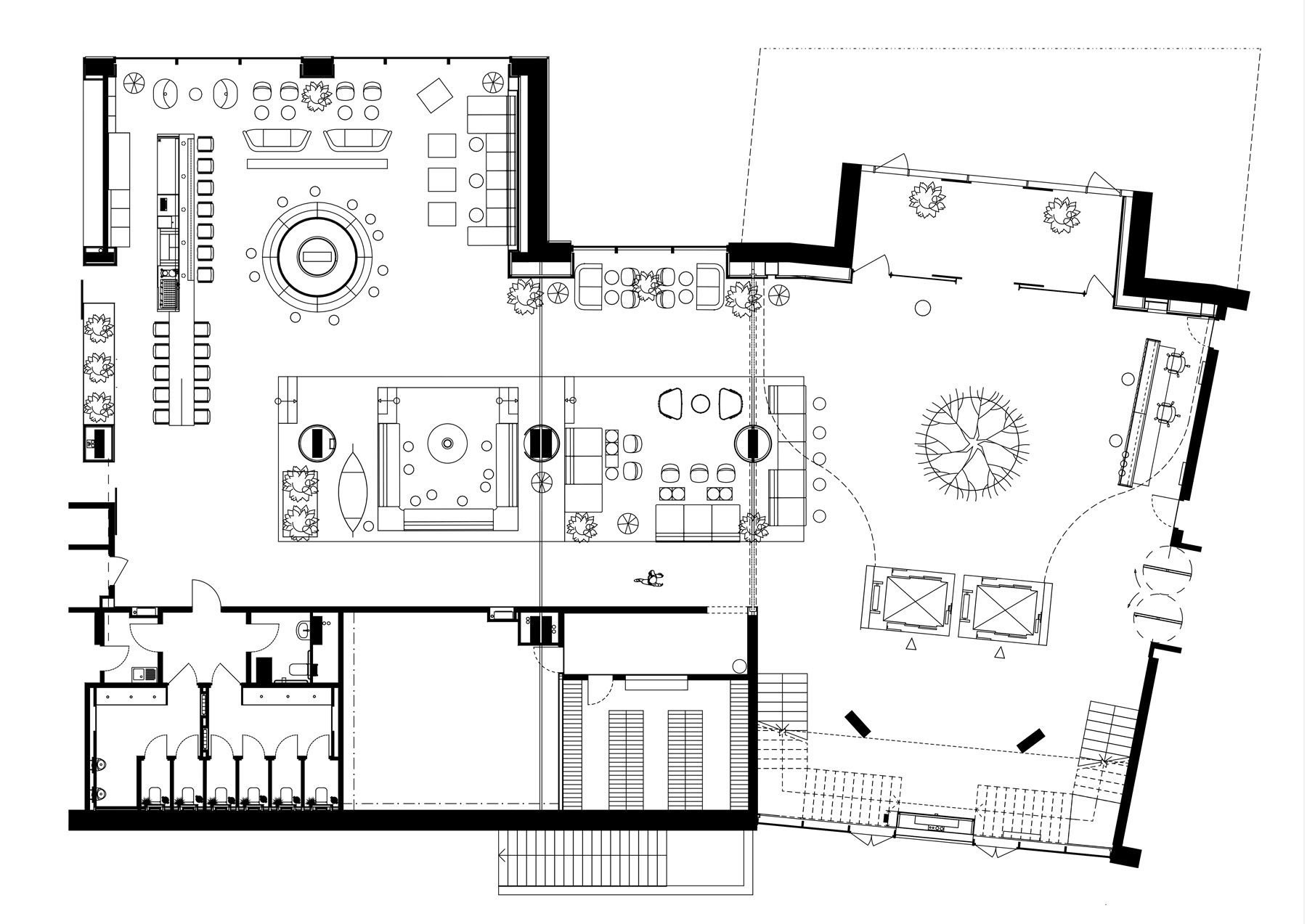
Emily Hotel розміщений на території нового комплексу Emily Resort у місті Винники поблизу Львова. Візитівкою комплексу стала масштабна інсталяція з підвішеним в атріумі готелю платаном. Могутнє дерево пронизує п’ять поверхів будівлі.

Його природній обрис контрастує з ритмічною геометрією довкола – горизонталями поверхів, вертикалями дошок в покритті стінта та діагоналями металевих поручнів на сходах. Прилягши на круглий шкіряний пуф в холі, гості готелю отримують унікальний емоційний досвід від споглядання дерева знизу, крізь коріння.


ДЕРЕВО

Ми відкинули ідею месивної люстри в атріумі, натомість вирішили розмістити там потужну символічну інсталяцію. Дерево – це завжди про зв’язок з корінням та родинні цінності, зростання та розвиток. Про заземленість та космос, міць стовбура та гнучкість гілок. Перед тим, як підвісити у холі готелю, дерево ретельно очистили, висушили та стабізували. Його форму відсканувалиу у 3D, щоб у візуалізаціях проекту дерево було таким самим, як у житті.

УНІКАЛЬНІ ЕЛЕМЕНТИ

Щоб уникнути надлишкової декоративності, ми свідомо не створюємо в наших проектах фотозони. Натомість в кожен інтер’єр ми вписуємо унікальні елементи, що посилюють його концепт. Такі рішення притягують погляди та стають органічним місцем для фото. На кожному з поверхів видно різну частину дерева, таким чином гості отримали одразу п’ять нетривіальних фотозон.

ЛАУНЖ ЗОНА

Досконалу геометрію утворює конструкція сходів з металевими поручнями. Центральна зала переходить в зону лаунжу. Тут є два «патіо» – квадратні зони з диванами по периметру та круглою колоною по центру, заглиблені нижче рівня підлоги. В середині колони змонтоване вогнище, захищене склом.

ІСТОРІЯ

Ми прагнули досягти ефекту візуальної легкості, розповісти історію ранкового вітерця, що пробігає поверхнею озера та причісує очерет. Цей образ ми відтворили за допомогою структури з термодошок, якими оздоблені стіни холу. Кожна дошка змонтована боковим зрізом у рухомий паз. Таким чином малюнок поверхні стін, можна змінювати, зрушивши крайню дошку в ряду.

Previous
Previous

Buddha-Bar New York

Next
Next

ДАЛІ БУДЕ