
SAMNA
Project: Samna / Marbella
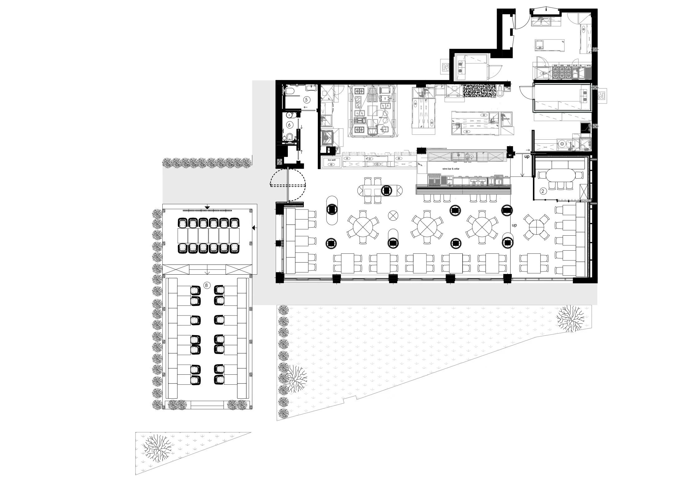
Location: Marbella, Malaga, Spain
Area: 318 m2
Completed: 2025
Photo: Pedro Jaen
team: Volodymyr Nepyivoda, Anna Danilova, Maksym Netreba, Andriy Zavsiegolov
“Samna” is a modern restaurant showcasing Middle Eastern cuisine through the unique vision of Chef Meir Adoni.
The interior is bright and emotionally charged, inspired by its setting in a picturesque Mediterranean resort town. Visual accents are centered around a maritime theme – from deep blue tones to wave-like forms echoed in a striking ceiling installation.
INSPIRED INTERIOR
The interior is bright and emotionally charged, inspired by its setting in a picturesque Mediterranean resort town. Visual accents are centered around a maritime theme – from deep blue tones to wave-like forms echoed in a striking ceiling installation.
One of the space’s key challenges was its relatively low ceiling height. To visually extend the space, designers incorporated vertical lines using columns clad in deep blue glass panels.
TACTILE ELEGANCE & LOCAL ARTISTRY
All surfaces were thoughtfully selected for their tactile appeal and cooling effect: glass columns, ceramic tabletops on the summer terrace, and Norwegian black marble adorning the walls of the rear dining area.
Most custom design elements were crafted in Ukraine. The glass components for the columns were made by Lviv-based master glassblower Marian Talanchuk. Glazed ceramic table surfaces on the terrace were produced in the Dnipro workshop of Serhiy Horban. Several pieces of furniture also originate from Ukrainian artisans.
ART, LIGHT AND FUNCTION
The ceiling installation serves both aesthetic and functional purposes. Concentric circles symbolize the ripples created by a drop falling into water. These radial, funnel-shaped elements feature a sculptural relief highlighted by biodynamic lighting – designed and installed by Expolight – which casts a dramatic chiaroscuro pattern across the ceiling. The installation also conceals all technical systems and acoustic insulation above.
UKRAINIAN ROOTS + AESTHETIC
“It was important for us to bring a project with Ukrainian roots to Spain – not to recreate the Samna restaurant in Kyiv, but to establish a fresh, original aesthetic in line with our terroir design philosophy,” says Volodymyr Nepyivoda, Managing Partner of YOD Group.
OUR TEAM