YOY

project: YOY

link

location: The Pointe in Palm Jumeirah (UAE)

area: 200 m²

completed: 2022

YOY is the first restaurant of Ukrainian cuisine in Dubai. The interior concept includes light walls, deliberately solid wooden furniture, and rethought traditional symbols. Such a laconic space makes a tangible contrast with glossy Dubai venues. 

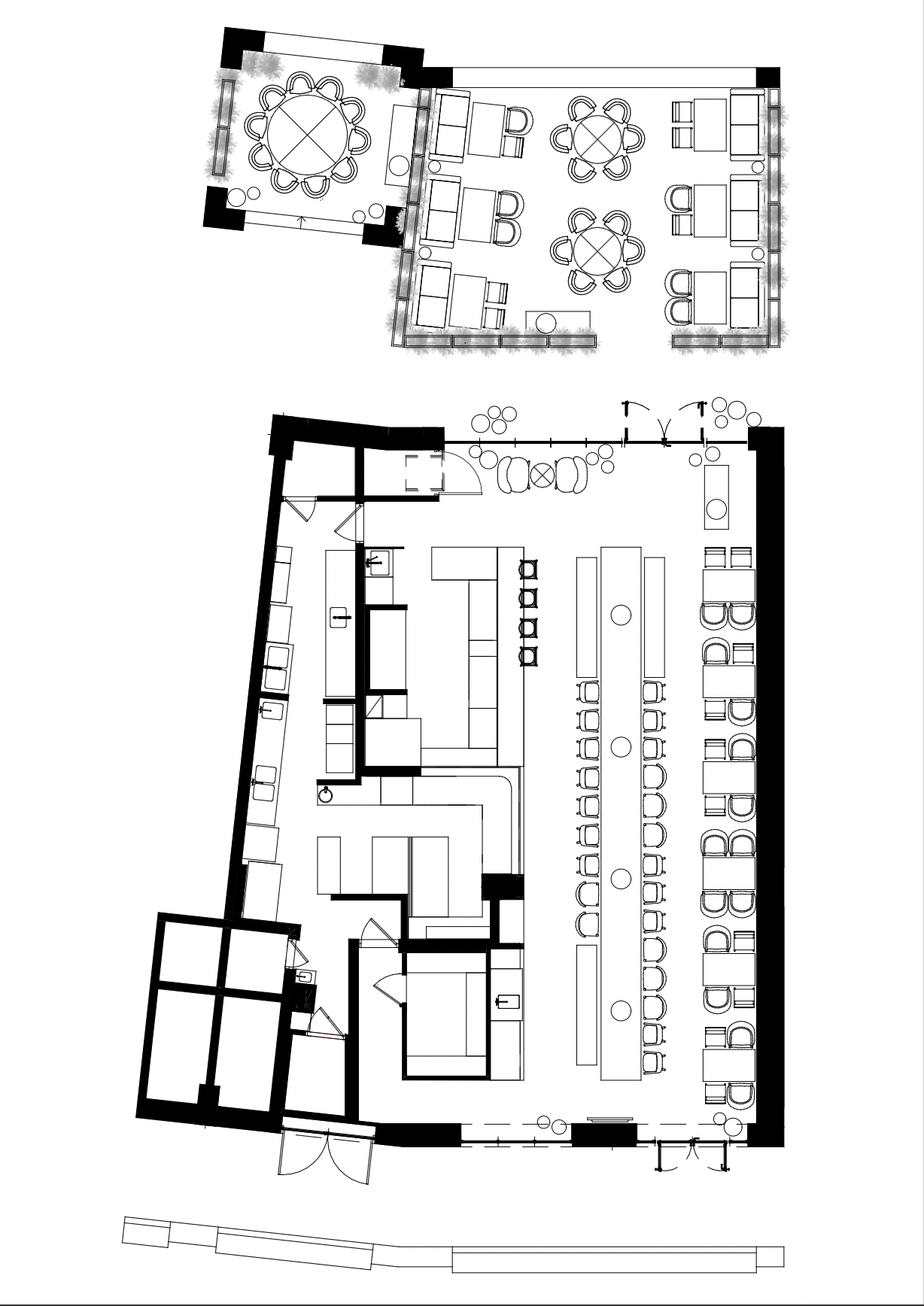
The main inspiration for the project was the traditional Ukrainian Mazanka, the village hut whose walls were covered by clay. The YOY walls' plaster has the same white shade our ancestors used for their clay walls. Open vent channels are trimmed with acoustic material with the same tone.


CLAY VESSELS

There is a horizontal composition of clay vessels on one of the walls. The handmade modeled utensils show the clay as a unique flexible material. For example, the traditional Ukrainian doughnut-shaped jug “Kumanets” melts, collapses, and transforms into a “Glechik”. Another traditional accent in the space makes a wool textile that was brought from a Zakarpatian weaving workshop.

MINIMALISTIC CONTEXT

The idea of the space was to showcase Ukrainian traditions through the contemporary minimalistic context. An open kitchen with an authentic stove is decorated with white handmade tiles that were custom-made in a ceramic workshop in Lviv. Many dishes from the YOY menu are cooked according to the old recipes in the stove.

THE STORK NEST

A 13 meters long wooden table locates in the center of the restaurant hall. The installation made from branches hanging above the table symbolizes the stork nest. Ukrainian belief says that the stork brings good luck to the family in whose courtyard it has built a nest. Projectors directed on the walls show animated silhouettes of storks returning to the nest.

Previous
Previous

LOBBY BAR / City Inn Lviv Hotel

Next
Next

SFUMATO GASTRO ATELIER