PURI CHVENI KHARKIV

Puri Chveni in Kharkiv is the third venue in the chain of restaurants of traditional Georgian cuisine. It is located in the city center in the building which was erected at the beginning of the XX century. We remained the façade and the outer walls and renewed old wooden doors to preserve the atmosphere of old Kharkiv.

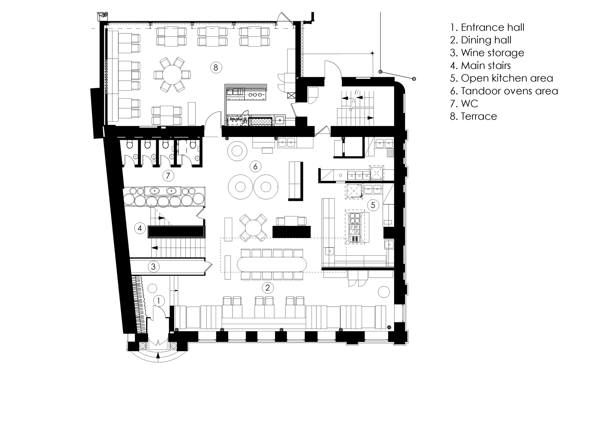
We have totally remodeled the inner structure of the building. The roomy atrium has a ceiling height up to 12 miters was shaped in its central part. Natural light comes inside through attic windows and shoots its beams to the ground floor. This solution allows us to get the filing of the volume filled with air. The unique vine room with glass walls located vertically on both restaurant’s floors.

project: Puri Chveni Kharkiv

link

location: Myronositska str. 52, Kharkiv (Ukraine)

area: 550 m²

completed: 2020

photographer: Andriy Bezuglov


PURI CHVENI

The name "Puri Chveni" in translation means "Our Bread". Most of the kitchen elements in the restaurant are opened, so visitors can watch the process of khinkali shaping and khachapuri cooking with their eyes. Tandoors, rounded mud stoves for baking bread and cooking meat are placed in the hall as well. That is why the visit to Puri Chveni is a kind of an excursion to the Georgian culinary culture.

VINE BAILERS

Clay and wood are the main materials in the interior, we used strong and wear-resistant thermally modified oak to improve the strength of the surfaces. Traditional Georgian vine bailers made from dried pumpkins hung up in the atrium, a big macrame lace with the ancient Borjgali symbol of welfare placed on one wall, on another wall you can see the wooden board with hundreds of stones in it. We copied it from the ancient artifact from a museum of applied art. Such boards with stone blades were used in the Georgian area to thresh grain thousands of years ago.

Previous
Previous

GEMINI Roastery

Next
Next

Ryba-Pyla