BAO

BAO is a modern Chinese restaurant that embodies the atmosphere and energy of three megalopolises – Singapore, Hong Kong and New York. We used Asia and US Chinese restaurants as a guide for the new place. Thus, the idea of cosmopolitanism and cultural migration between the East and the West was represented.

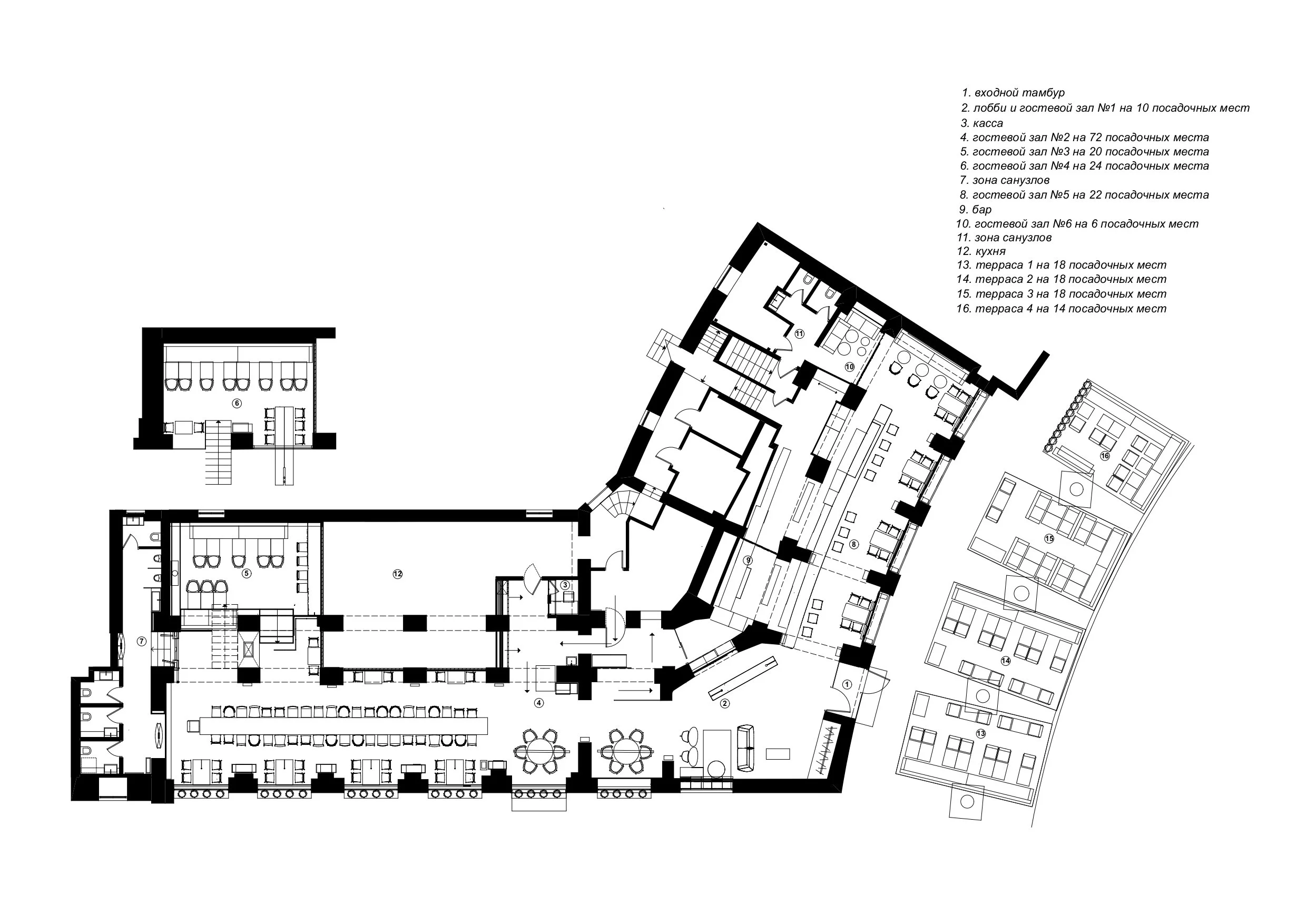
On the center of the main dining area, there is the longest community table in the Eastern Europe. About 50 guests can easily sit down to this table. The table consists of seven tabletops interconnected by six brass mascots, which come laden with symbols of Eastern philosophy. On the ceiling above the table, one can see the main decorative element of the space - the scale of the Dragon diving into water. The installation consists of the thousand ceramic tiles, each of which symbolizes Koi fish. As Chinese legend has it, any fish that gains the Dragon Gateway up the river turns into dragon. Waterfall at the end of the room embodies such a gateway.

project: BAO restaurant

link

location: 14 Mechnikova St.,Kyiv, Ukraine

area: 600 m2

completed: 2016

photographer: Andriy Avdeenko


BAO Interior

Next to the main area there is a little one with fireplace and cozy tables for those who want to retire. The room on the second floor is decorated with the bright installation named Chinese warrior armor. It overlooks the main room as well as an open kitchen. An additional attention grabber of this room is the brass table crossing the line of the glass barrier and balancing over the main dining area. In such a manner the idea of the Yin and Yang balance is represented.

Surely, one of the main points of interest is a kitchen. It is fully open, placed straight on center and surrounded by glass windows only. Thanks to this approach, guests can oversee the kitchen teamwork, notwithstanding where they

Previous
Previous

MANU

Next
Next

ZWIN & SHOco.